min max
km

Nyon

11'883 CHF / mois

Local commercial d'exception au centre de Nyon

620.00 m2
9 chambres
4 salles de bain
Ascenseur
Place de parking
Commerces
Écoles
Bus
Gare
Ville

Local commercial d'exception au centre de Nyon

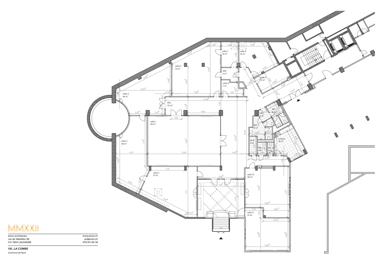
Magnifique local commercial de 620 m² au rez-de-chaussée inférieur d'un bâtiment directement relié à la Migros La Combe à Nyon.

Actuellement, les locaux sont aménagés en plusieurs salles de classe, blocs sanitaires ainsi qu’une kitchenette. Le futur locataire pourra définir le nouvel aménagement en collaboration avec la régie.

Emplacement idéal, à proximité immédiate de toutes les commodités : commerces, écoles, transports publics et accès autoroutiers.
La gare de Nyon se situe à seulement 2 minutes à pied.

La surface se trouve au rez-de-chaussée inférieur avec ascenseur et entrée depuis le Chemin de Crève-Coeur et bénéficie d’un parking privé (en supplément) et l'accès par l'ascenseur au parking de la Migros.

Loyer : dès CHF 230.–/m²/an, variable selon les aménagements souhaités et/ou la durée du bail.

Loyer net : CHF 11'883.–
Charges : CHF 2'067.– (CHF 40.-/m²/an)
Total : CHF 13'950.– (hors TVA)

Places de parking au prix de CHF 180.–/mois (hors TVA)

Disponibilité : immédiate ou à convenir.